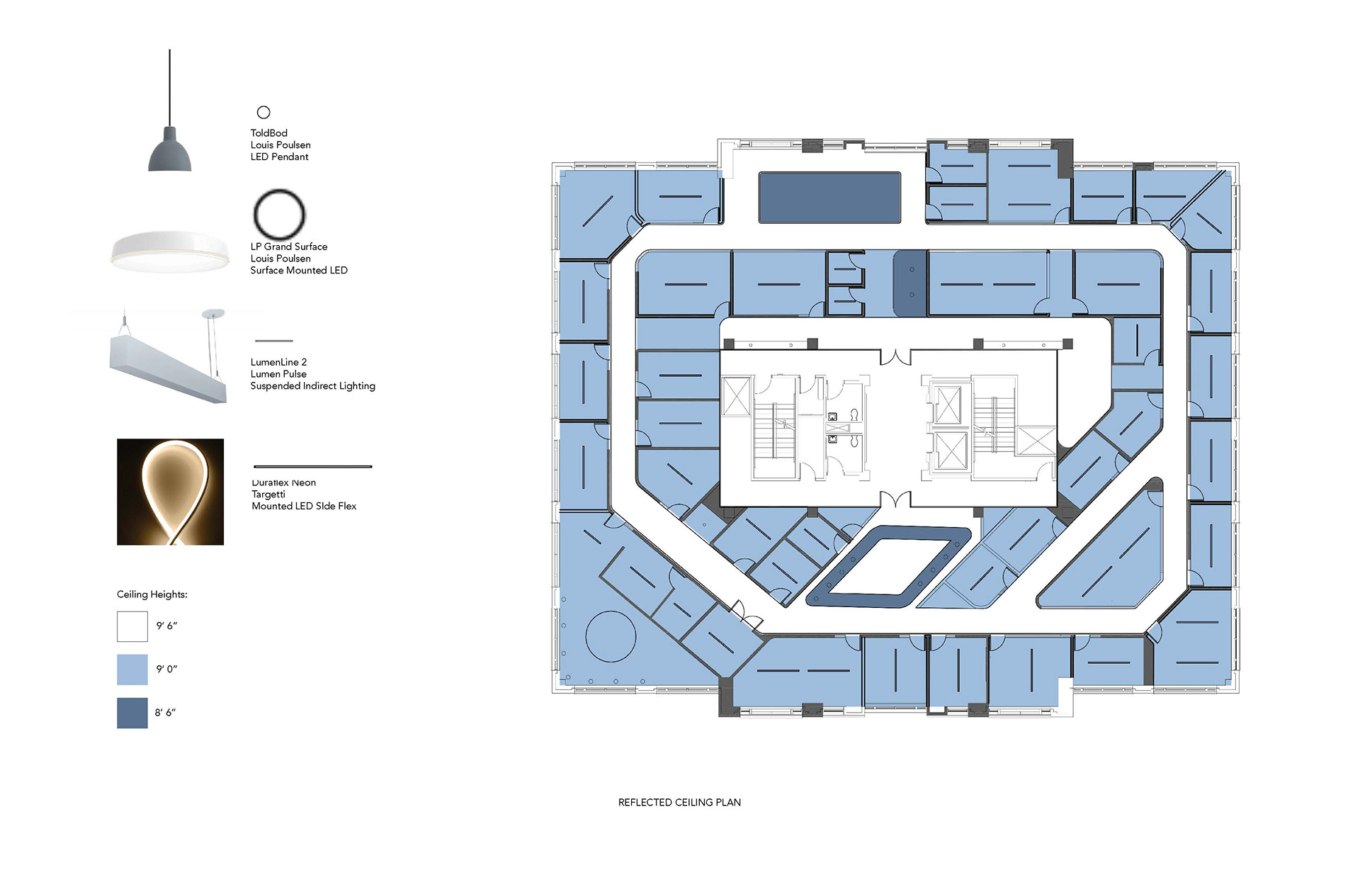
Our Fall Final had us designing a Digestive Clinic using OFS Furniture to create an inviting, soothing atmosphere for both employees and patients alike.
This was a Competition Project where I was partnered with Ayla Hernandez, and with further research in the creation of a concept, we found that doctors & patients alike suffer from burnout and distrust. Thus, it became clear to us we wanted to create a space where both patients and doctors flourished, as that was when harmony and restoration could be reached.
This was a Competition Project where I was partnered with Ayla Hernandez, and with further research in the creation of a concept, we found that doctors & patients alike suffer from burnout and distrust. Thus, it became clear to us we wanted to create a space where both patients and doctors flourished, as that was when harmony and restoration could be reached.